Hiện nay, mẫu thiết kế nhà ống cấp 4 5x20m ngày càng được nhiều gia đình lựa chọn bởi tính thẩm mỹ, công năng đáp ứng đầy đủ và tiết kiệm được tối đa chi phí xây dựng. Cùng NAMI tham khảo ngay những mẫu thiết kế nhà ống cấp 4 5×20 đẹp nhất dưới đây nhé!
Xem thêm: Thi công xây dựng biệt thự cao cấp
Vì sao mẫu nhà cấp 4 đẹp 5×20 lại được ưa chuộng

Mẫu nhà cấp 4 5x20m ngày càng được nhiều người lựa chọn bởi những lý do sau đây:
- Nhà cấp 4 được thiết kế theo phong cách hiện đại, đơn giản, đầy đủ tiện nghi và tối ưu được toàn bộ không gian sử dụng. Thiết kế này phù hợp với ngôi nhà diện tích nhỏ, nhà dành cho gia đình trẻ ít thành viên.
- Thiết kế nhà cấp 4 được bố trí theo kiểu kiến trúc nhà ống. Tuy chiều ngang khiêm tốn nhưng sự bài trí hợp lý vẫn mang lại đầy đủ không gian riêng tư cho các thành viên trong gia đình.
- Thiết kế nhà cấp 4 rất đa dạng mẫu để bạn có thể lựa chọn như: nhà cấp 4 mái thái, nhà cấp 4 có gác lửng, nhà cấp 4 2- 3 phòng ngủ,…
- Với diện tíc 5x20m, nhà cấp 4 xây dựng với kết cấu đơn giản giúp bạn tiết kiệm được rất nhiều chi phí.
Những mẫu nhà cấp 4 5×20 đẹp nhất
Dưới đây là những mẫu nhà cấp 4 5×20 đẹp, hiện đại, tiện nghi được lựa chọn nhiều nhất mà bạn có thể tham khảo:
Mẫu nhà cấp 4 mái thái 5×20

Mẫu thiết kế nhà cấp 4 5x20m mái thái rất được ưa chuộng tại nông thôn. Bởi vùng nông thôn có diện tích rộng rãi nên có thể thiết kế thêm phần sân vườn tạo không gian xanh mát, thư giãn cho các thành viên trong gia đình.
Mẫu nhà cấp 4 mái thái thiết kế theo phong cách hiện đại, đảm bảo đầy đủ công năng và không gian riêng tư cho các thành viên trong gia đình. Nhà được sơn trắng nổi bật kết hợp với hệ cửa kính lấy sáng giúp không gian sang trọng, hiện đại, tiện nghi hơn.
Thiết kế nhà cấp 4 mái bằng 5×20 hiện đại

Mẫu thiết kế nhà cấp 4 5x20m mái bằng theo lối kiến trúc hiện đại, trẻ trung và sang trọng phù hợp với gia đình trẻ. Tổng thể mặt bằng công năng bao gồm phòng khách, bếp, phòng ăn, 2 phòng ngủ và WC.
Mẫu thiết kế này phù hợp với những ngôi nhà phố. Bạn có thể để sân phía trước làm nơi để xe hoặc trồng cây cối tạo không gian xanh. Thiết kế ngôi nhà theo hướng không gian mở, hạn chế tường, vách ngăn trong các phòng giúp tối ưu diện tích sử dụng mà vẫn đảm bảo được tính thẩm mỹ.
Mẫu nhà cấp 4 5x20m chữ L

Mẫu nhà cấp 4 5x20m chữ L phù hợp với những căn nhà ở nông thôn có diện tích đất rộng rãi và chi phí xây dựng thấp. Hai phần của ngôi nhà được xếp vuông góc với nhau không đòi hỏi mặt bằng quá lớn. Đặc biệt phần sân trống trước nhà có thể làm nơi để xe, trồng cây, sân vui chơi cho trẻ em,…
Với mẫu thiết kế này bạn có thể trồng thêm nhiều hoa, cây xanh quanh nhà tạo ra không gian xanh mát, thân thiện, gần gũi với thiên nhiên.
Thiết kế nhà cấp 4 5×20 có gác lửng đẹp nhất

Mẫu thiết kế nhà cấp 4 5x20m không kén chọn địa điểm, không gian xây dựng nên phù hợp với mọi diện tích đất, nhu cầu xây dựng của gia chủ. Mẫu nhà thiết kế theo phong cách hiện đại, đơn giản với các hình khối vuông vức kết hợp với mái thái vừa mang lại sự thoáng mát lại vừa có tính thẩm mỹ cao.
Thiết kế gác lửng trong nhà giúp bạn tăng thêm diện tích sử dụng mà không tốn quá nhiều chi phí xây dựng. Phòng gác lửng có thể dùng làm phòng ngủ, phòng đọc sách, phòng làm việc, phòng sinh hoạt chung,..cực kỳ tiện lợi.
Thiết kế nhà cấp 4 mặt tiền 5m 2 phòng ngủ

Mẫu thiết kế nhà cấp 4 2 phòng ngủ được nhiều gia chủ lựa chọn bởi thiết kế độc đáo, nổi bật và cuốn hút người nhìn. Kiến trúc ngôi nhà được các kiến trúc sư thiết kế sáng tạo với phần cửa chính để lệch sang 1 bên, tường được ốp gạch giả gỗ kết hợp với sơn màu trắng chủ đạo mang lại cho ngôi nhà một diện mạo sang trọng, tinh tế nhất.
Căn nhà có phòng khách, bếp, 2 phòng ngủ với đầy đủ công năng và đáp ứng được mọi nhu cầu sử dụng của các thành viên trong gia đình.
Mẫu nhà cấp 4 5x20m 3 phòng ngủ đẹp

Mẫu nhà cấp 4 3 phòng ngủ được xây dựng trên khu đất rộng rãi, diện tích xây dựng của ngôi nhà lên tới 100m2 nên có thể bố trí công năng đầy đủ, tiện nghi nhất.
Thiết kế ngôi nhà theo hình chữ L với mái thái nổi bật cùng tone màu nâu – trắng giúp tôn lên vẻ đẹp hiện đại, sang trọng và lôi cuốn của kiến trúc này.
Công năng của ngôi nhà được chia gồm: 1 khách, 1 bếp, 1 phòng ăn, 3 phòng ngủ, 2 WC đáp ứng được đầy đủ nhu cầu của các thành viên trong ngôi nhà.
Mẫu nhà cấp 4 4 phòng ngủ 5x20m hiện đại

Với diện tích đất 5x20m thì mẫu nhà cấp 4 mái thái 4 phòng ngủ là sự lựa chọn hoàn hảo nhất cho bạn, nhất là đối với những gia đình đông thành viên. Thiết kế mái thái không chỉ sang trọng, nổi bật mà còn mang lại không gian mát mẻ, thoáng đãng, thoải mái.
Công năng trong ngôi nhà được chia thành: 1 phòng khách, 1 bếp, 1 phòng ăn, 4 phòng ngủ, 3 WC. Tận dụng chiều sâu lý tưởng của ngôi nhà, các kiến trúc sư đã khéo léo sắp xếp các không gian tối ưu và đảm bảo được sự riêng tư, thoải mái cho các thành viên sử dụng.
Một số bản vẽ thiết kế nhà cấp 4 5x20m đẹp, tiện nghi nhất
Dưới đây là một số bản vẽ thiết kế nhà cấp 4 5x20m đẹp chi tiết nhất. Bạn có thể tham khảo và bắt tay ngay vào xây dựng mẫu nhà lý tưởng cho mình!
Bản vẽ nhà cấp 4 5×20m 2 phòng ngủ

Bố trí mặt bằng: sảnh, khách, bếp, phòng ăn, 2 phòng ngủ, WC, sân vườn.
Bản vẽ này bao gồm khu vực sân trước có thể dùng làm sân chơi hoặc nơi đỗ xe. Bố trí không gian phòng ăn thông với phòng khách, hạn chế vách ngăn để tạo ra không gian mở thoáng đãng khắc phục nhược điểm hẹp bề ngang của ngôi nhà.
2 phòng ngủ có diện tích tương đương nhau được bố trí hợp lý, yên tĩnh, đảm bảo được sự riêng tư thoải mái khi sử dụng. Khoảng sân sau có thể trồng rau, cây cảnh, hoa tạo không gian xanh mát.
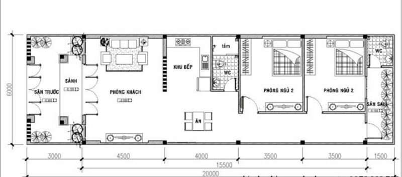
Bản vẽ nhà cấp 4 5×20m 3 phòng ngủ

Bố trí mặt bằng: Gồm phòng khách, bếp, phòng ăn, 3 phòng ngủ, 1 WC
Với bản thiết kế này, gia chủ sẽ tận dụng được toàn bộ diện tích của đất. Các căn phòng được thiết kế rộng rãi, có cửa sổ đảm bảo sự thông thoáng, mát mẻ, dễ chịu nhất.
3 phòng ngủ thiết kế liền nhau với diện tích nhỏ nhưng vẫn đảm bảo đầy đủ công năng và đáp ứng cho nhu cầu của người sử dụng.
Bếp, phòng ăn được sắp xếp phía sau nhà để hạn chế ám mùi lên phòng khách, phòng ngủ trong quá trình nấu nướng cực kỳ tiện lợi.
Bản vẽ thiết kế nhà cấp 4 5×20m hiện đại

Bố trí công năng: sảnh, phòng khách, bếp, phòng ăn, 3 phòng ngủ, 2 WC
Bản vẽ thiết kế giúp gia chủ tối ưu mọi không gian sử dụng . Các không gian sinh hoạt của các thành viên trong gia đình được sắp xếp liền nhau tập trung ở phía trước ngôi nhà. Căn nhà có 1 phòng ngủ master kết hợp WC với diện tích khá lớn và 2 phòng ngủ nhỏ dành cho trẻ em.
Bản vẽ nhà cấp 4 5×20 1 phòng ngủ

Bố trí công năng: Phòng khách, bếp, phòng ăn, phòng ngủ, WC
Khoảng sân trước nhà rộng rãi có thể thiết kế làm nơi để xe, sân chơi hoặc trồng cây, hoa tạo ra không gian xanh mát cho ngôi nhà.
Tất cả các phòng trong nhà đều được sắp xếp theo hướng không gian mở, xu hướng hiện đại, giảm bớt vách ngăn, tường giúp căn nhà rộng rãi và tiện nghi hơn. Mẫu thiết kế này phù hợp với gia đình trẻ năng động, ít thành viên có lối sống hiện đại.
Bản vẽ nhà cấp 4 5×20m tiện nghi

Bố trí công năng: Sân, phòng khách, bếp, phòng ăn, 2 phòng ngủ, WC
Với mẫu thiết kế này thì nơi sinh hoạt chung được thiết kế ấn tượng, phía sau phòng khách có khoảng vườn nhỏ để trồng cây xanh, hoa giúp tăng tính thẩm mỹ và mang lại sự thoáng mát, dễ chịu cho ngôi nhà.
Thiết kế 2 phòng ngủ với diện tích tương đối rộng rãi. 1 phòng ngủ master có WC riêng biệt và khoảng vườn nhỏ. Phòng ngủ nhỏ cho bé được bố trí gọn gàng, thông minh và tiện dụng.
Chi phí thiết kế mẫu nhà cấp 4 5x20m đẹp nhất
Hiện nay, giá thiết kế nhà cấp 4 5x20m được tính theo công thức như sau: Đơn giá x diện tích sàn x số tầng.
Giá thiết kế nhà cấp 4 hiện nay dao động trong khoảng 120.000đ – 150.000đ/m2. Nếu tính theo công thức trên thì chi phí cho thiết kế sẽ là: 120x100m2 = 12.000.000đ.
Với số chi phí bỏ ra cho thiết kế, bạn sẽ nhận được hồ sơ thiết kế đầy đủ bao gồm:
- Bản vẽ 3D mặt tiền kến trúc
- Bản vẽ 2D bố trí công năng nội thất
- Bản vẽ 2D mặt bằng tường
- Bản vẽ mặt cắt, mặt đứng, mặt bằng sàn, trần, bố trí cửa
- Bản vẽ chi tiết về WC, cầu thang, sảnh
Trên đây là những mẫu thiết kế nhà ống cấp 4 5x20m đẹp hiện đại, tiện nghi nhất mà NAMI đã thực hiện được. Hy vọng bạn đã lựa chọn được những mẫu nhà ưng ý, phù hợp nhất với gia đình mình. Nếu bạn có nhu cầu thiết kế, xây dựng nhà cấp 4 trọn gói hãy liên hệ ngay với NAMI nhé!


![[Chọn lọc] Mẫu nhà 2 tầng giá 300 triệu rẻ và đẹp](https://namidesign.webseoviet.com/wp-content/uploads/2021/10/mau-nha-2-tang-300-trieu-mai-thai.jpg)






